|
求道会館は、仏教界の刷新を志し欧州の宗教事情をつぶさに経験してきた若き日の近角常観の注文に基づき、新進気鋭の建築家として全く同時期にヨーロッパ近代建築の新潮流を学びその日本への定着を試みてきた武田五一が12年にわたる設計期間の末に生み出したものである。 近角はこの建築のさらに10年後、老朽化していた木造の求道学舎の建て替えも同じく武田に依頼し近代建築による欧州形式の寄宿舎(2006年再生)を作り、この求道会館に調和した宗教空間を作り出している。 昭和16年に常観が没したあとは弟の近角常音がその活動を受け継いだ。そして常音が昭和28年に亡くなったあと会館は長く閉鎖されることになった。平成6年に東京都の有形文化財に指定され、平成8年から6年間修復工事が行なわれ、平成14年6月にオープンした。 |
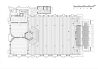
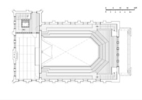
| 正面立面 | 一階平面 | 二階平面 |
|
|
| 建築図提供 : 文化財工学研究所 |
|
※2006年再生 各界で活躍する多くの人材を輩出してきた求道学舎約100年の歴史は、平成11年(1999)にその幕を閉じました。雨漏り、錆びついたスチールサッシ、外壁に現れた無数の亀裂、床の陥没、漆喰壁と天井の崩落、閉鎖と同時に建物の寿命も尽きたかのようでした。 それから7年後の平成18年(2006)廃墟のようであった求道学舎の建物は、高規格改修、耐震補強、スケルトン・インフィル等、最新の建築技術を駆使して再生されました。 築80年を経た建築の寿命を、少なく見積もっても60年間長命化することができ、さらに60年後の築200年までをも展望することができるという高い技術です。コーポラテイブ方式による定期借地権分譲という仕組みを使い、11軒の集合住宅として生まれ変わることができたのです。 |
| ※求道学舎は非公開です。求道会館の2階から外観だけは見ることができます。 詳しくお知りになりたい方は、以下の雑誌、 書籍、ホームページをご参照ください。 『新建築』2006年8月 『日経アーキテクチュア』2006年8月28日 『Casa Brutus』2007年2月 『I’m home』2008年3月 『住む。』2008年秋号 『求道学舎再生』近角よう子著 学芸出版社 http://www.shu-koh-sha.com/ |

